Mgliano, Attività di pescheria/rosticceria

Mgliano, Attività di pescheria/rosticceria

Mogliano Veneto - Gastronomia in cessione
60.000 €
Caratteristiche principali
90 m²
Superficie
3
Locali
Descrizione
Mogliano Veneto – Centro
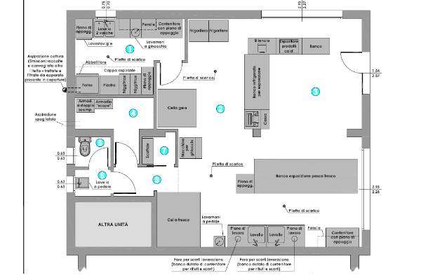
Cedesi attività di Pescheria/Rosticceria in posizione centrale con ottimo canone di affitto dei muri.
L’attività viene ceduta completa di tutta l’attrezzatura presente, inclusi:

Abbattitore

Armadi frigo n. 2 da 700 lt

Armadietti per indumenti n. 2

Armadi per detersivi e scope n. 2

Banco espositore pesce mod. Delfino

Banco esposizione gastronomia

Banchi di appoggio area vendita

Banco appoggio cassa

Banco esposizione pesce in acciaio (senza vetri)

Bilancia Euromobil

Bilancia GPEXL

Bilancia Lite

Cappa e gruppo aspirante

Cella gelo

Cella fresco

Contenitori per esposizione

Espositore prodotti caldi

Fabbricatore di ghiaccio con serbatoio

Forno elettrico

Freezer verticale a doppia porta in vetro

Friggitrici da 15 lt n. 2

Lavamani a pedale

Piano cottura

Piano di lavoro con 2 lavelli (retro banco pesce fresco)

Piano di lavoro con pensili in cucina

Piastre di cottura n. 2

Registratore di cassa

Router TIM

Scaldabagno per produzione acqua calda

Sottovuoto W8

Scaffalature varie

Attività pronta all’uso, completa e ben attrezzata.
Contatto diretto per informazioni e visite.
Caratteristiche
Codice:
AT 01
Città:
Mogliano Veneto
Categoria:
Gastronomia
Locali:
3
Mq:
90
Mq calpestabili:
80
Classe energetica:
In fase di valutazione
Cookie preference